当前位置:首页>技术应用

电机带减速箱端盖的压铸模设计与铸件后处理

肖洪波 发表于2024/7/22 9:14:42 铝合金带减速箱端盖压铸工艺
分享:

原标题:操作便捷!电机带减速箱端盖的压铸模设计与铸件后处理

铝合金带减速箱端盖是小微型低速电机的重要零件,压铸工艺克服了加工中心无法加工到位的问题,并可大幅提高生产效率。设计了一种结构简单、工作可靠、铸件分型面美观的模具结构。采用侧浇口进料方式既有利于成形又方便去除浇口废料;针对该端盖铸件外形不规则且内含两个空间正交轴承孔,必须经切削精加工方可满足止口与机座、轴承室与轴承的高精度配合要求。采用了一套定位准确、夹紧可靠无变形、翻转精度高、结构简洁合理、操作方便快捷的铣夹具。

图文结果

交流驱动电机的转速可在960r/min左右,而当转速需要在几十r/min时,最简单的方法就是在电机出轴处安装一减速箱,输出所需要的最终低转速。但这样的结构需要将减速箱和端盖用螺钉进行连接,长久工作后易发生松动而导致工作故障;而且需要花费两套压铸模具分别获得减速箱和端盖铸件。一种优化的结构是将减速箱和端盖两件合一,见图1。端盖压铸模及所获端盖压铸件后其止口和二处轴承室的切削加工所用的铣夹具较为关键,必须满足端盖止口和轴承高精度的要求。

图1 减速箱端盖示意图

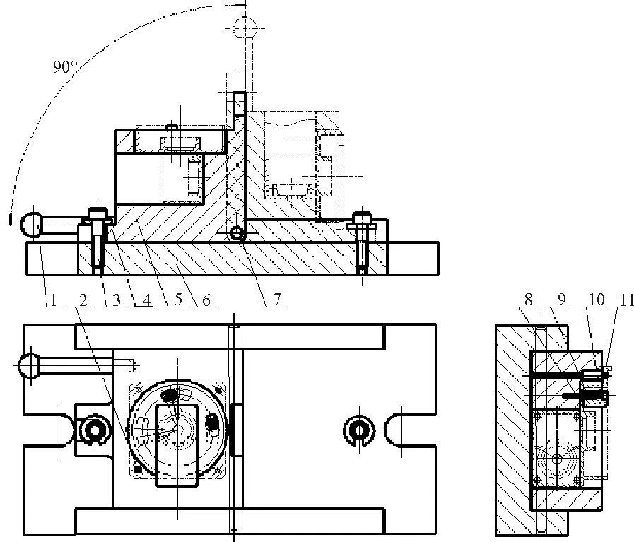
图2 带减速箱端盖压铸模总装图

1.定模板 2、17、24、30、33、35、39、40.紧固螺钉 3、41.楔紧块 4.减速箱滑块座 5、42.斜导柱 6.减速箱滑块 7.减速箱滑块轴承室型芯 8.安装孔型芯 9.定模型芯 10.端盖轴承室型芯 11.动模型腔 12.分流锥 13.浇口套 14.导套 15.导柱 16.动模板 18.动模盖板 19.浇口废料推杆 20.推杆固定板 21.垫块 22.动模底板 23.推板 25.推板导套 26.推板导套 27.铸件推杆 28.固定销 29.复位杆 31、38.限位板 32、36.压簧 34、37.垫片 43.外缘滑块

鉴于机壳结构的特殊性,采用了既有利于充型又方便浇口切除的侧浇口进料方式。从图1看出,A处(减速箱体与端盖结合部)、B处(速箱内腔)均设置了抽芯机构,以确保顺利推出铸件;为分解铸件端盖部和减速箱两处的包紧力,将端盖部型芯9设置在定模,将减速箱抽芯机构设置在动模。图1中的3个弧形窗口用于为电动机散热,在定模型芯的端面设置3个弧形凸台,避免了复杂的镶拼。

熔融的铝合金从浇口套13注入,随着压射冲头在与之相连的冷压室中推进,熔融的铝合金被压入动模型腔11,经增压、冷却后开模。位于动模的二滑块6、43分别处于端盖铸件的减速箱内和端盖外缘处,从而形成较大的脱模阻力,基于斜导柱与滑块斜孔之间设有2mm间隙,在开模的瞬间定、动模水平开模运动在先,二滑块的抽芯运动在后,端盖铸件得以顺利脱离定模型芯9;随着开模继续,二滑块沿斜导柱作抽芯运动直至脱离斜导柱5、42;当开模结束,端盖内的所有型芯已全部脱离,仅剩铸件外形留在型腔内,启动推出机构,5根推杆(其中1根为冷压室废料推杆)即可轻松推出铸件。

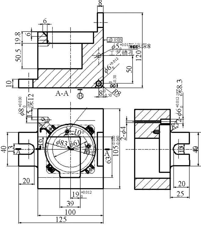
图3 带减速箱端盖铣床夹具
1.手柄 2.定位圆销 3.夹具体锁紧螺钉 4.开口垫片 5.夹具体 6.底座 7.转轴 8.压块螺钉 9.压簧 10.转位压块 11.菱形销

为满足与轴承和定子的装配要求,需将所获压铸件进行必要的后续加工处理,以便两处轴承室和止口尺寸车削或铣削至精度和形位公差达到要求,但由于端盖形状的特殊性,致使车削加工时即使有车夹具支持也无法实现一次装夹完成两个空间正交轴承孔的加工,因此,考虑采用铣夹具来解决上述问题,见图3。

夹具体5(见图4)置于底座6之上,绕转轴7在0°~90°之间翻转,并且0°和90°是两个工作位置,手柄与夹具体插孔采用间隙配合以便完成插入翻转后立即拔出(否则会妨碍铣削加工),同时夹具体5的一个固定槽刚好穿过底座上的夹具体锁紧螺钉3,在固定槽和夹具体锁紧螺钉3的头部之间插入开口垫片4,再拧紧螺钉3即限制了夹具体最后一个转动自由度。基于压铸件尺寸一致性程度高的特点,端盖铸件在夹具体采用一面两销定位,即利用端盖4-ϕ5mm安装孔中的2个对角孔分别套入一个定位圆销2和一个菱形销11。当转位压块10转至指定位置时只需旋紧压块螺钉8即可锁紧端盖零件。

图4 夹具体

结论

零件为压铸毛坯件且形状不规则,所采用的一面两销定位和端盖散热槽转位压块夹紧装置是理想的选择,巧妙地利用了压铸件尺寸一致性好的特点,使低精度的IT10孔距安装孔作为定位孔,防止了薄壁端盖零件若强行采用三爪或平口钳等通用夹紧方式所导致的零件变形。将夹具体5设计成可90°翻转的活动母体,轻松完成一次装夹铣削相互空间正交的两个轴承孔。选择开口垫片作为重要的夹紧原件,避免了必须将压块螺钉全部旋出。取夹具体5俯视图转轴孔右、下两面交汇处的圆角为8mm,若小于其定位尺寸8mm,则夹具体翻转时将会出现卡死现象。

端盖零件难以在加工中心上用铝块毛坯完成铣削,压铸是较为合适的选择,但压铸精度仅为IT10左右,为了将某些关键部位的尺寸精度提升一个数量级,机床夹具的设计及其应用尤为关键。

作者

肖洪波
苏州工业职业技术学院精密制造工程系
本文来自:《特种铸造及有色合金》杂志,《压铸周刊》战略合作伙伴

回页顶部